Tòa nhà EXIMBANK Bình Thạnh là một trong những công trình biểu tượng về tài chính – ngân hàng tại TP.HCM. Để khẳng định vị thế thương hiệu cũng như nâng cao giá trị thẩm mỹ, dự án thiết kế chiếu sáng landscape đã được triển khai, mang đến diện mạo hoàn toàn mới cho không gian ngoại thất và cảnh quan xung quanh tòa nhà.
Nút bật tắt đèn cho ảnh
2. Vai trò của thiết kế chiếu sáng landscape
Chiếu sáng landscape không đơn thuần là lắp đặt đèn. Đây là giải pháp kiến trúc – nghệ thuật, giúp:
Tôn vinh kiến trúc tòa nhà: Hệ thống ánh sáng được bố trí khoa học, nhấn mạnh đường nét hiện đại, sang trọng của công trình.
Tạo điểm nhấn về cảnh quan: Các mảng cây xanh, lối đi và không gian sân vườn trở nên hài hòa và ấn tượng hơn khi có ánh sáng dẫn lối.
Gia tăng trải nghiệm: Nhân viên, khách hàng và đối tác khi đến EXIMBANK đều cảm nhận được sự an toàn, thân thiện nhưng vẫn sang trọng.
Khẳng định thương hiệu: Một tòa nhà rực rỡ và chuyên nghiệp vào ban đêm chính là lời khẳng định mạnh mẽ về tầm vóc của EXIMBANK.
Chiếu sáng landscape không đơn thuần là lắp đặt đèn. Đây là giải pháp kiến trúc – nghệ thuật, giúp:Một tòa nhà rực rỡ và chuyên nghiệp vào ban đêm chính là lời khẳng định mạnh mẽ về tầm vóc của EXIMBANK.
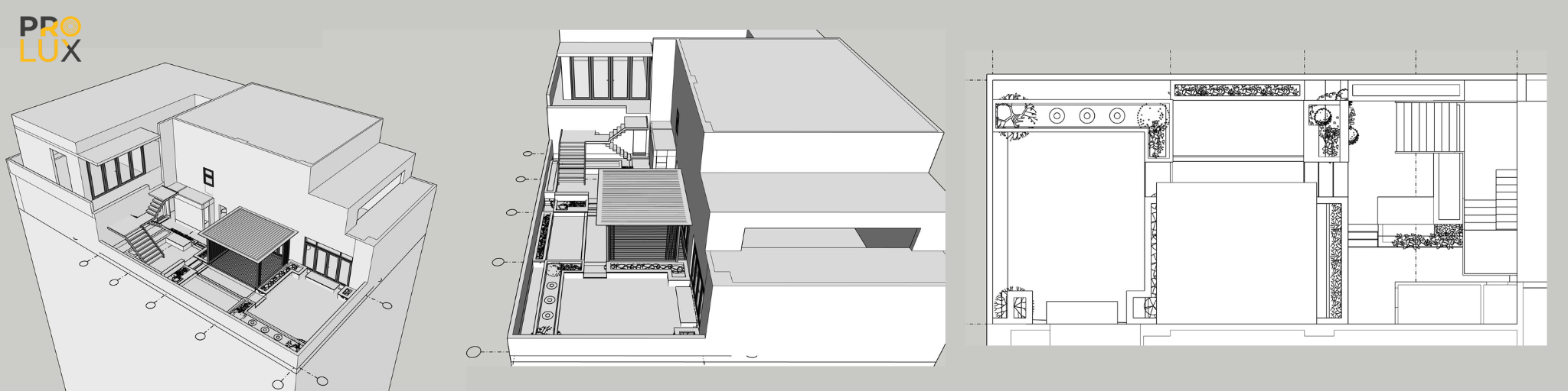
3. Giải pháp chiếu sáng landscape tại EXIMBANK Bình Thạnh - Prolux
Trong dự án này, đội ngũ thiết kế đã áp dụng những giải pháp tối ưu:
Đèn LED tiết kiệm năng lượng với tuổi thọ cao, đảm bảo vận hành ổn định.
Chiếu sáng nhấn (accent lighting) để làm nổi bật các mảng tường, cột và chi tiết kiến trúc.
Chiếu sáng cây xanh và tiểu cảnh nhằm tạo sự cân bằng giữa công trình và thiên nhiên.
Giải pháp chống chói – chống lóa mang lại trải nghiệm thị giác dễ chịu.
Hệ thống điều khiển thông minh giúp quản lý ánh sáng linh hoạt theo từng khung giờ.
Giải pháp chiếu sáng landscape tại EXIMBANK Bình ThạnhGiải pháp chiếu sáng landscape tại EXIMBANK Bình Thạnh
4. Kết luận
Dự án thiết kế chiếu sáng landscape tòa nhà EXIMBANK Bình Thạnh là minh chứng rõ ràng cho vai trò của ánh sáng trong việc nâng tầm giá trị kiến trúc và thương hiệu. Đây không chỉ là giải pháp chiếu sáng, mà còn là nghệ thuật kể chuyện bằng ánh sáng – giúp EXIMBANK tỏa sáng cả ngày lẫn đêm.